nadia cuevas lastra
En Venta
casa de 3 ambientes- Excelente zona
Código: 192908

Cacique Coliqueo 1237, Moron, Buenos Aires, Argentina.

USD189.000

Casa
Compartir esta Propiedad

Descripción de la Propiedad

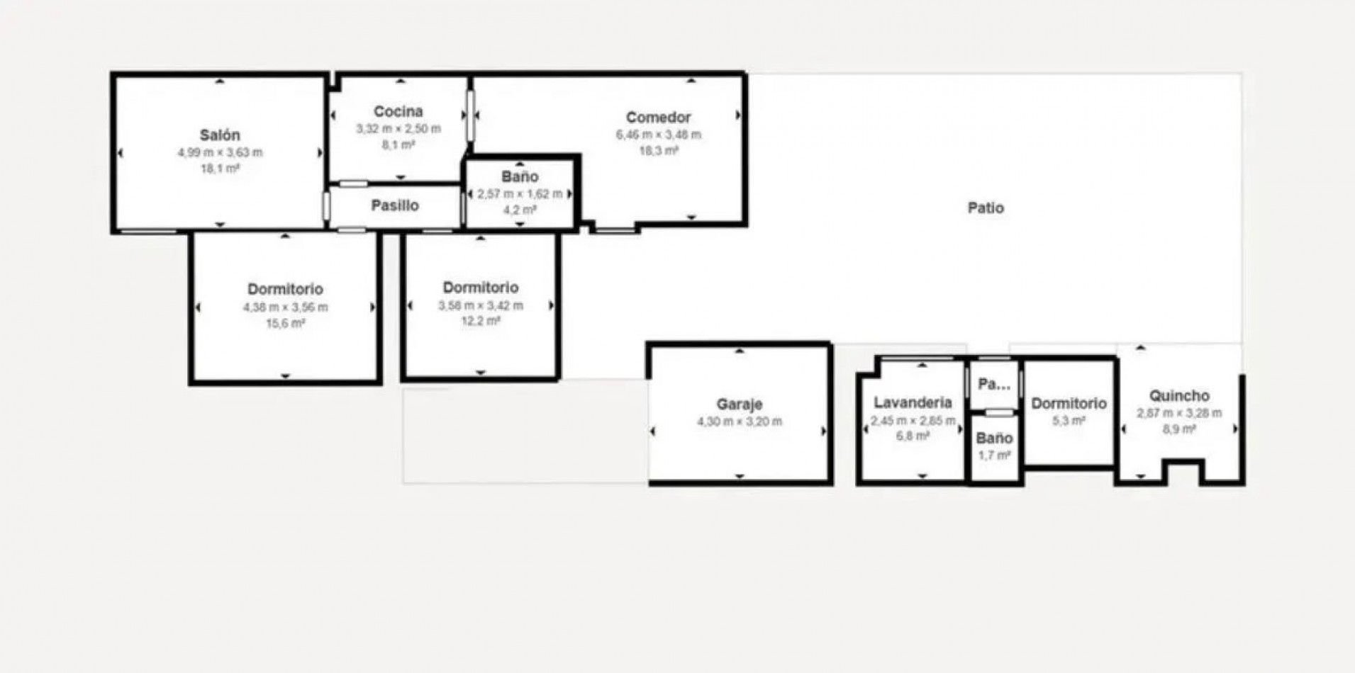
Casa de 3 ambientes – 300 m² totales – Sólida, funcional y súper luminosa

Propiedad de 45 años, muy bien conservada y pensada para vivir cómodo, con espacios amplios, silenciosos y con excelente ventilación natural.

Cuenta con:

Cocina comedor integrada, equipada con muebles bajo mesada de madera de excelente calidad.

Baño completo con vanitory.

Lavadero independiente.

Parrilla con quincho, mesa y bancos ideales para reuniones.

Garage amplio.

Altillo con gran capacidad de guardado.

Aire acondicionado frío/calor instalado.

Pisos de cerámica y aberturas de aluminio, materiales durables y fáciles de mantener.

Una propiedad sólida, funcional y lista para habitar sin complicaciones.

Mas detalles
  • Antigüedad 45 años